Overview
- Updated On:
- July 22, 2025
- 1 Bedrooms
- 1 Bathrooms
- Not Available Garages
- 48
- Year Built:U izgradnji
Opis
APARTMENTS IN ULCINJ PINJES:
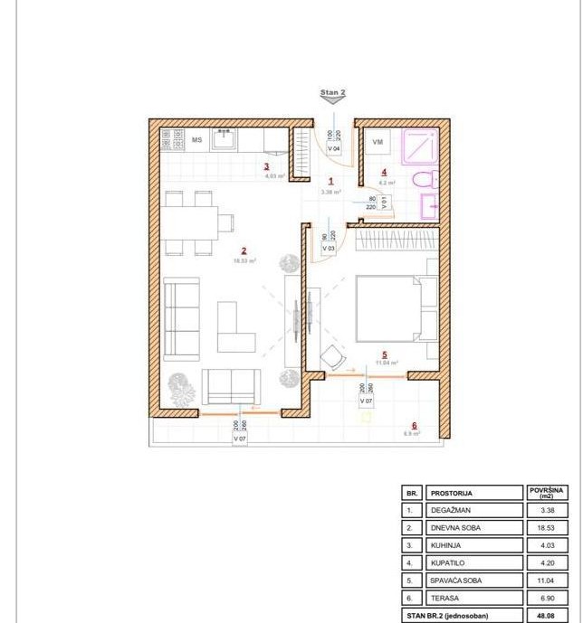
One-room apartment under construction – Pinješ, Ulcinj – 48m² – GROUND FLOOR
We are offering a one-room apartment under construction with an area of 48m², located in a quiet part of Ulcinj – Pinješ, about 3km from “Mala plaža”
📍 Location: Pinješ, Ulcinj
📐 Area: 48m²
🌊 Distance from the sea: 3 km
🔲 Sea view: No
🏢 Floor: Ground floor
🛁 Bathroom: 1
🛋️ Balcony: Yes
🚗 Parking: In front of the building
🛗 Elevator: Yes
🧱 Status: Under construction – planned completion September 2025
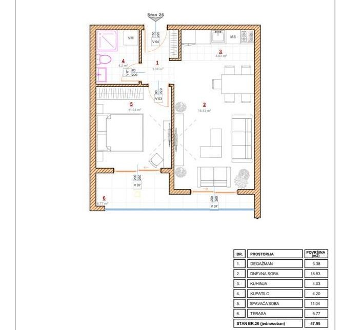
2. One bedroom apartment under construction with sea view – Pinješ, Ulcinj – 48m² – 4th floor
For sale is a one-room apartment under construction with an area of 48m², located in a quiet part of Ulcinj – Pinješ. The apartment is located on the 4th floor of a modern building with an elevator and has a view of the sea, which makes it ideal for living, vacationing or renting.
📍 Location: Pinješ, Ulcinj
📐 Area: 48m²
🌊 Distance from the sea: 3 km
🌅 Sea view: Yes
🏢 Floor: 4 (building with elevator)
🛁 Bathroom: 1
🛋️ Balcony: Yes
🚗 Parking: Provided in front of the building
🧱 Status: Under construction – planned completion September 2025
Your information
Contact Me
Other Agents













